AGCのwebサイト内コンテンツ「新しい建築のおおらかさを求めて」第19回にムトカのインタビューが掲載されました。

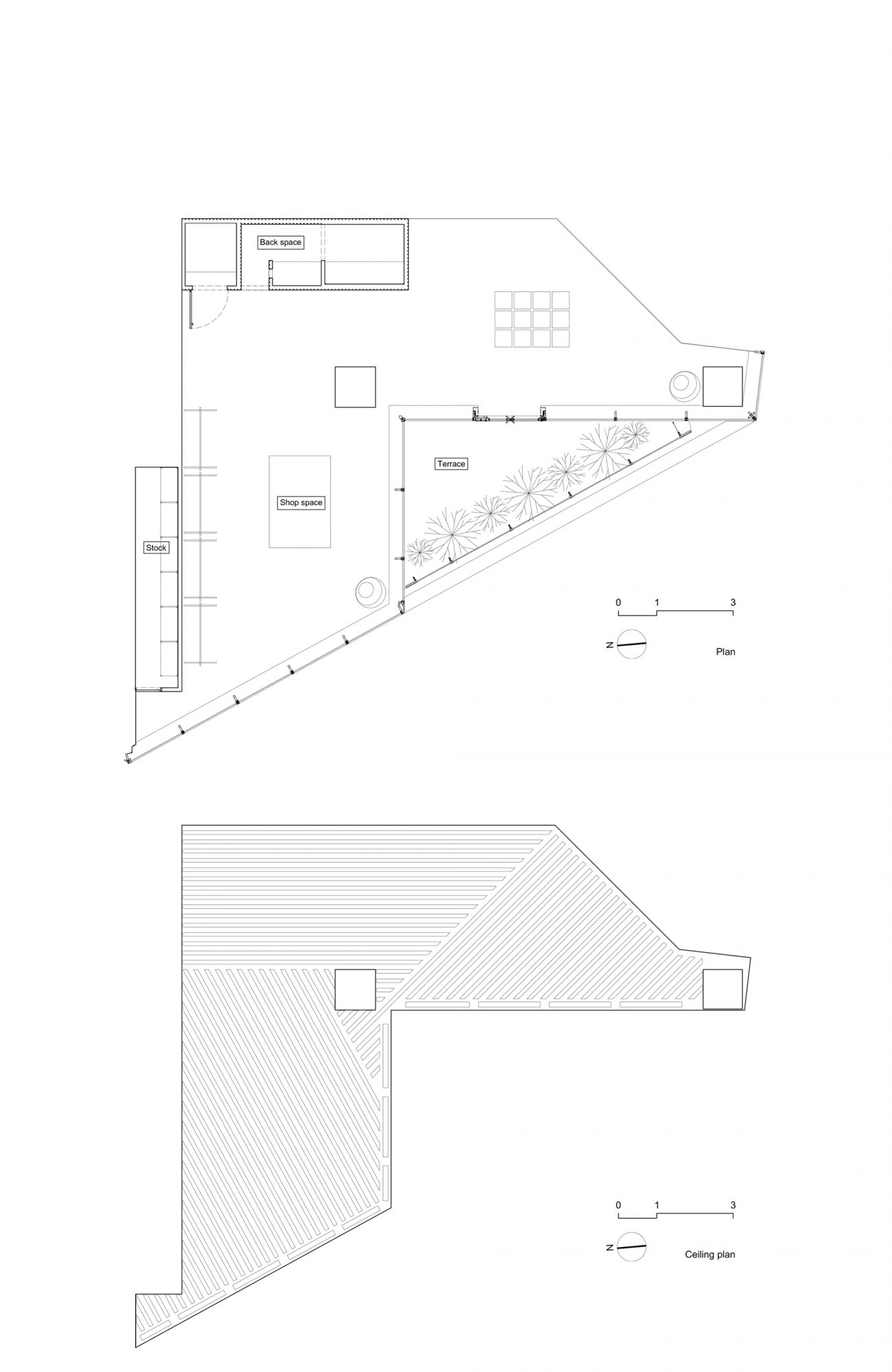
ファッションブランドvisvimの渋谷パルコ内の店舗設計である。自然光が多く入る敷地の特性を生かして、ナチュラルな光があふれる大地をつくることをめざした。そのような光環境をつくりだすために、ルーバーの上面に照明を取り付け、天井懐内で反射した間接光が一様に落ちる仕組みとした。日中は南面から入る自然光と天井の間接光をブレンドすることによってナチュラルな光環境をつくり、商業空間でありながらも心地よいと感じられる空間をつくっている。照明は自然光とのバランスを考慮して、朝10時~14時が25%、14時~15時が50%、15時~17時が75%、17時~21時が100%と段階的に調光し、日中から夜への光環境の移行をスムーズに行っている。床は土、フィッティングとレジカウンターが入った箱は土がカビたような風合いのタイル張りとし、これまでvisvimのショップで使われていた什器のフォルムはそのままに、材料を栗のナグリに変換した什器を並べた。一見すると何をデザインしたのかわからないほど自然な空間は、時間や時代を感じさせない、新しくて懐かしい場所となっている。

The shop design for the flagship store of the Japanese fashion brand “visvim” in Shibuya PARCO. One of the important conditions for this space is natural light, even if it’s located within the context of a commercial building. Here, we decided to create the earthen floor with full of natural light, for getting the feeling of wilderness. Lighting is installed above the louvered ceiling to offer a soft indirect light reflected inside the ceiling technical space. In the daytime, light from the ceiling and the window are blended, creating a natural and comfortable environment. Lighting is modulated automatically according to the amount of natural light from the window, changing the light environment from the daytime to night smoothly. The floor is treated by Tataki style concrete, and the deadstock bricks used for walls are re-baked by using unevenly grilled finishes, creating a wet expression against a dry, coarse texture. The furniture has the same shape as in the other flagship store, but material is changed into oak treated by Naguri technique. Although each design and materials has a somewhat modest impression compared to the surrounding shopping area, the space helps to create a timeless atmosphere fitting to show expressive products.

PEERLESS

Date : 2019.11
Type : Shop
Location : Shibuya, Tokyo
Floor : 119.39㎡
Consultant : Izumi Okayasu Lighting Design, Mizuno seitoen LAB.
Contractor : ISHIMARU
Photo : Yasuhiro Nakayama
Press : 商店建築2020年3月号

現代住宅の100個の考え抜かれた納まりが掲載された『現代住宅の納まり手帖』にムトカで設計した「N邸」の雨樋と階段が掲載されました。
どちらの納まりとも、この住宅のために考えたディテールですが、他の建築でも参考になればうれしいです。

ファッションブランドvisvimの店舗設計である。敷地が位置する福岡赤坂は、けやき通りのレンガ敷きの歩道や、近接する大濠公園にはヴォールト天井とレンガ仕上げが特徴的な前川國男設計の福岡市美術館がある。そのような都市のもつ空間の質を読み取り、インテリア設計においても場所性を取り込むことを試みた。梁の多い天井を活かしてヴォールトの光天井とし均質な光で満たした。床は白い釉薬を施し再焼成したレンガタイルを円形状に張り地面にリズムを与えた。そうしてできあがった空間はまるで彫刻美術館の展示室のような柔らかな光に包まれた空間となり、visvimの服、靴、小物が美しく展示される。

The shop design for the flagship store of the Japanese fashion brand “visvim.” The shop is facing the serene street, with a hundred planted Zelkova trees and brick pavement. Vintage apartments standing along this street match the calm cityscape and nearby, there is the museum designed by Kunio Mayekawa, which has elegant vaulted ceiling and brick-cladding. Here, we tried to bring such an atmosphere of the surroundings into even an interior of the shop. The vaulted light ceiling is designed to make use of the many structural beams, offering light without any shade. On the floor, a ripple-like pattern of white brick, which is made originally by applying a white glaze prior to re-baking, creates a rhythm from the entrance towards deeper inside. The quality of this realized interior space is like a courtyard of a sculpture museum, and footwear and garments are exhibited in this softly lit environment.

F.I.L. FUKUOKA

Date : 2019.7
Type : Shop
Location : Akasaka, Fukuoka
Floor : 166.30㎡
Consultant : Izumi Okayasu Lighting Design, Mizuno seitoen LAB., Studio onder de linde
Contractor : ISHIMARU
Photo : Yasuhiro Nakayama
Press : 商店建築2020年8月号, AIT issue 9.2020, ArchiDaily 2020.4
Award : ArchDaily Building of the Year 2021 Awards 5 finalists in Commercial Architecture category, KUKAN DESIGN AWARD 2020 Long List

極大の楕円で流れを変える

築20年の戸建て住宅のリノベーションである。オーナーが変わり、夫婦と子供ふたりの家族が新たに住むことになった。この住宅の最大の特徴は、勾配屋根が架かった45m2の大きなワンルームの2階リビングで、幅3.5×高さ3.7mの南向きの大開口部をもっていることである。この大きなワンルームに、ひとつの極大なオブジェクトを入れることで、人の流れ、力の流れ、風の流れ、光の流れを更新し、新しい家族に合った建築をつくろうと考えた。 そこで南窓の横架材の高さ1.8mのレベルに、スーパー楕円形状の穴の空いた天井を挿入した。空間の重心が南側に偏っていることで拠り所のなかったリビングの重心を中央に引き寄せ、楕円の回りに多様な居場所をつくった。また、天井面が火打ちのように突っ張り、階段のささらがブレースの役割を果たすことで、南窓の筋交いを取り外すことができた。それによって隣の公園との距離が縮まり、内部空間が街に広がっていく。また、天井裏に上り上部の窓を開閉することで換気が可能となり、さらに天井が庇のように働き、夏場の熱負荷が軽減された。 この天井は、木造の床のように厚くもなく、吊り天井のように薄くもない。既存の木造の建築からは自律した実体のあるオブジェクトである。そして、楕円の吹抜けは実体がなく空虚である。2階リビングの床に立つと、高さ1.8mにある厚さ101mmの天井の小口面は、終わりのない1本の線として認識され、地平線のような大きな存在にも見えてくる。そんな線としてしか認識されない天井は、階段を上り、その天井裏に入り込むことで、はじめて楕円としての幾何学形状が露わになる。人の居場所をつくるためにつくられたはずの天井は、その居場所を僅かに残すのみで、空間いっぱいに吹抜けている。まるで、池べりに佇み、その深い底を覗き込むような感覚である。

The renovation project of a 20-year-old house, whose most unique character is a large window and pitched roof facing south. Our proposal is to insert another ceiling with a super elliptical void at 1.8m height in the upper floor, where living, dining space and kitchen are located.
This ceiling creates not only the space both above and below this, but also works as structural and environmental element, which make it possible to remove the existing bracing and to let the wind in from the upper part of the window.
This ceiling also exists as an maximal/autonomous object in the exsting context. Therefore the strong form of this ceiling/void could react toward the surrounding situation, physically and metaphysically.

天井の楕円 / Ceiling and Ellipse

Date : 2018.10
Type : House
Location : Kodaira, Tokyo
Floor : 88.36㎡
Consultant : Mika Araki, Studio onder de linde
Contractor : SS
Photo : Kenta Hasegawa, Shinkenchiku-sha
Press : 新建築住宅特集 2019年2月号, CASA BRUTUS No.230, 日経アーキテクチュア2019.2-14号, ArchiDaily 2020.4, LIXIL eye No.24
Award : 住まいの環境デザインアワード2020 優秀賞, 日本建築学会作品選集2020, グッドデザイン賞2020

空間を形作るU字型のアイコン

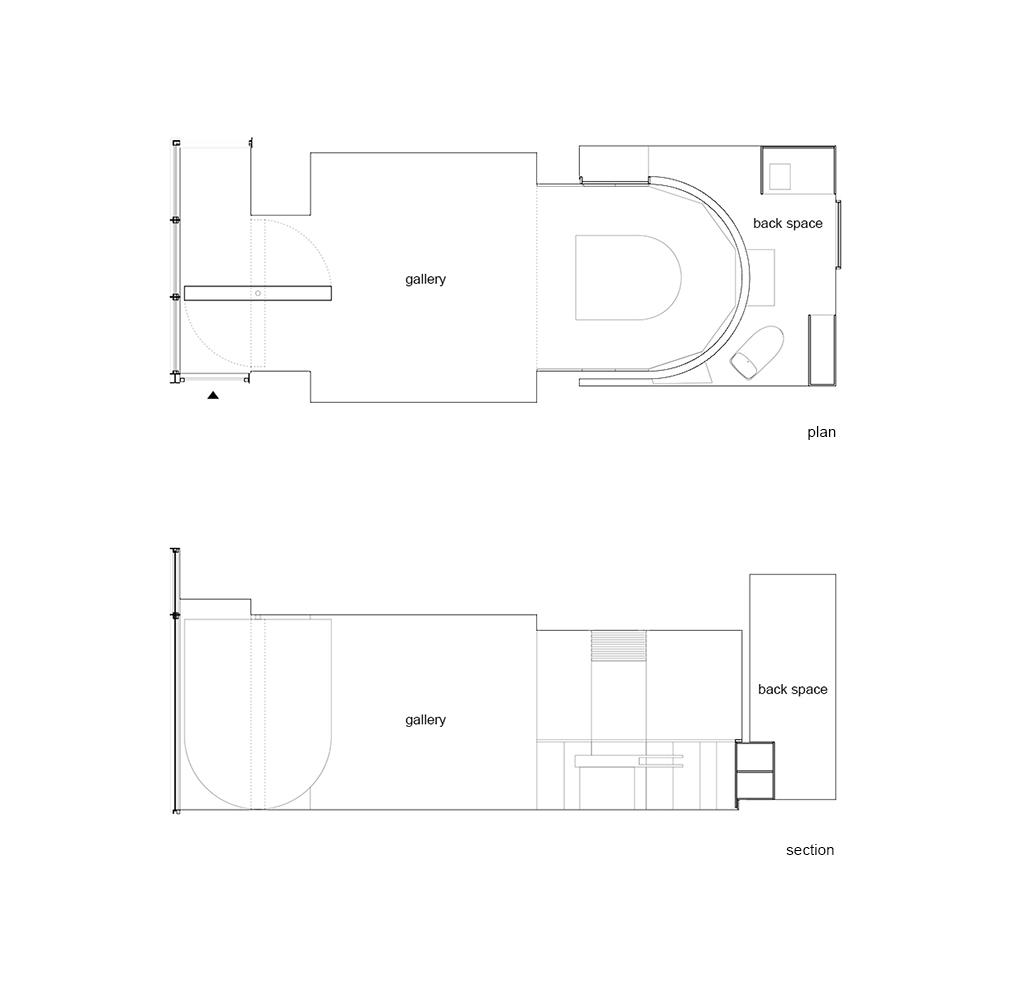
アウトサイダー・アートを扱うコマーシャルギャラリーの内装設計である。オーナーは、美術界だけでなく、日頃美術に所縁のない人たちでも気軽に美術作品を鑑賞し、購入できる、街に開かれたギャラリーにしたいと考えていた。 ギャラリーは、恵比寿西の五叉路に面するビルの1階という好立地にある。街の中で一際目立つアイコンとして、ファサードにU字型の回転扉を設けた。閉廊しているときには扉は閉まることで、ショーウィンドウのようなスペースをつくり、夜間でもそこに飾られた作品が街を彩る。開廊すると、扉は90度回ることでギャラリーと街とを繋ぐ。その扉は、小さなギャラリーにシークエンスを生み出し、空間に奥行きをつくる。 ギャラリー奥にはU字扉と相似型のテーブルがあり、事務・商談スペースになっている。テーブル下のマップケースに収蔵された作品をテーブルの上に並べて、お客さんと一緒に作品を選ぶ。テーブル形状に沿ったアール壁は、ついつい長居してしまうような居心地のよい空間をつくっている。

The interior design of the commercial gallery that specializes in the outsider art, which is built in the five-way intersection in Tokyo. The attempt to create a clear symbol in the city and create the interior space with its symbol. The large U-shaped rotating door behind the glass façade divides the space functionally by its opening and closing, and gives the expanse to the small space. The U-shaped table set in the inner space is used not only as the office space and the viewing space but also as the storage case of art works.

www.aacm.tokyo

ACM Gallery

Date : 2018.8
Type : Art Gallery
Location : Shibuya-ku, Tokyo
Floor : 28.27㎡
Contractor : Neu furniture works
Photo : Kenta Hasegawa

ニューヨークに拠点を置く現代美術ギャラリーの東京スペースのデザインである。具体やもの派といった日本戦後美術を取り扱い、多くの外国人コレクターが訪れるギャラリーに「日本らしさ」を感じる空間を提案した。 東京・表参道交差点のすぐ近く、青山通りから小さな路地に入る。ギャラリーへのアプローチはもうここから始まっている。飲食店が立ち並ぶ路地の一番奥にファサードを構える。数奇屋建築を多く手掛ける京都の中村外二工務店が施工した、墨色の浮造杉板張り、漆黒の縦胴縁で仕上げられた黒いファサードは、細い路地の奥で一際異彩を放つ。エントランスドアを開くと、柔らかな光に包まれた明るい展示室が現れる。正面の壁一面は天井までの高さの障子に覆われ、自然光が降り注ぐ。二つ設けられた展示室は、シンメトリーに配置され、鑑賞者は同じ二つの空間を行き来して、作品を鑑賞する。「続き間」から着想を得たその空間は、いつまでも完結しない。自然光の心地よさと相まって、美術鑑賞の悦びを享受できる空間である。コマーシャルギャラリーにとって重要な場所であるビューイングルームは、小さいながらも特別感のある「茶室」を思わせる空間になっている。バックスペースは、収納、キッチン、トイレなどの機能を壁面に納めた「通り庭」のような通路を抜けて、突き当たりにオフィスを配している。 表参道という狭い文脈ではなく、日本という文脈、あるいは、アジアという文脈の中で、その外から見て、ぜひ訪れたいと思えるギャラリーとはどのようなものか?という問いの答えとして、各所に日本建築の空間の質を定着させ、日本らしい居心地の良さと贅沢さを実現している。

The interior design of the branch in Tokyo of the contemporary art gallery based in New York. The foreigner client requested the “Japan-ness”. The entrance facade is black-painted cedar board and its surface is finished with Uzukuri that is an imitation of Sukiya design. The two square exhibition rooms have the versatile continuation like a “Tuzukima” and the soft natural light enters from Shoji screens whose height is 3.3m. The space of the viewing room is like a tea room, which is small but gives special feelings.

ファーガス・マカフリー東京 / Fergus McCaffrey Tokyo

Date : 2018.3
Type : Art Gallery
Location : Minato-ku, Tokyo
Floor : 132.69㎡
Contractor : D.BRAIN, Nakamura Sotoji Koumuten
Photo : Kenta Hasegawa, Courtesy of Fergus McCaffrey Tokyo

浅子佳英氏の自邸「GRAY」の1階の手付かずの場所にインストールする、居室ともユーティリティとも呼べない絶妙な大きさである7.5帖のキッチン、トイレ、バスルームの3つの部屋からなる住宅の計画である。 ユーティリティとしてはかなり大きな3つのヴォリュームは、住宅としての機能を充実させるだけでなく、二世帯住宅や独立した賃貸住宅としても利用できる多層的な状況をつくりだす。

3 UTILITY HOUSE in GRAY

Date : 2016.12
Type : House
Location : Meguro, Tokyo
Floor : 45.20㎡
Image : mtka

日本を代表するコンテンポラリーアートギャラリーである小山登美夫ギャラリーの内装設計である。通常の白く冷たいギャラリーではなく、小山さんのキャラクターにあった温かみがあり、物語性のある展示ができるような空間をめざした。インテリアを、ヴォリュームのサイズ、プロポーション、配置とそのつながりによってつくりあげ、さらに、木の建具、レンガの床、突板の壁、ベージュの壁などの具象的なテクスチャーで仕上げた。そうして立ち上がった空間は、抽象性は担保しながらも個性がある、まるで邸宅を改装したような空間の質もったギャラリーとなっている。

The interior design of Tomio Koyama Gallery that is one of the most famous contemporary art gallery of Japan. The space has the warmth that fits the character of Mr. Koyama and is able to give a story to the exhibition. Concrete materials: wooden fittings, bricks floor, veneer wall, the beige-colored wall and etc are combined by minimum details. This gallery has the individuality as well as the abstractness as an exhibition space and has the atmosphere of space just like a refurbished mansion museum.

小山登美夫ギャラリー / Tomio Koyama Gallery

Date : 2016.10
Type : Art Gallery
Location : Minato-ku, Tokyo
Floor : 158.51㎡
Contractor : ISHIMARU
Photo : Takumi Ota
Press : 新建築2017年6月号, japan-architects ブログ
Award : 3M施工事例コンテスト2017 入選

那須塩原市黒磯に提案したまちなか交流センター・まちなか交流広場の計画案である。「人と食を育む まちの学校」をテーマに、3つの広場と小さな部屋が集まった細長い縁側により、誰もがいつでも使える居場所、那須地域の食を中心とした多様な活動の受け皿をめざした。3つの広場はそれぞれ、石の広場(半屋外)、木の広場(屋内)、芝の広場(屋外)とし、各々の独立と連携、縁側空間との接続により、大きな賑わいをつくると同時に、その一角に人が少なく落ち着いた雰囲気の場所をつくることができるようになっている。

NASUSHIOBARA CIVIC CENTER PROJECT

Date : 2015.11
Type : CIVIC CENTER
Location : Nasushiobara, Tochigi
Floor : 1500㎡
Collaborater: Office of Shinichi Tokuda
Consultant : RYOTARO SAKATA Structure Engineers
Image : mtka, Office of Shinichi Tokuda